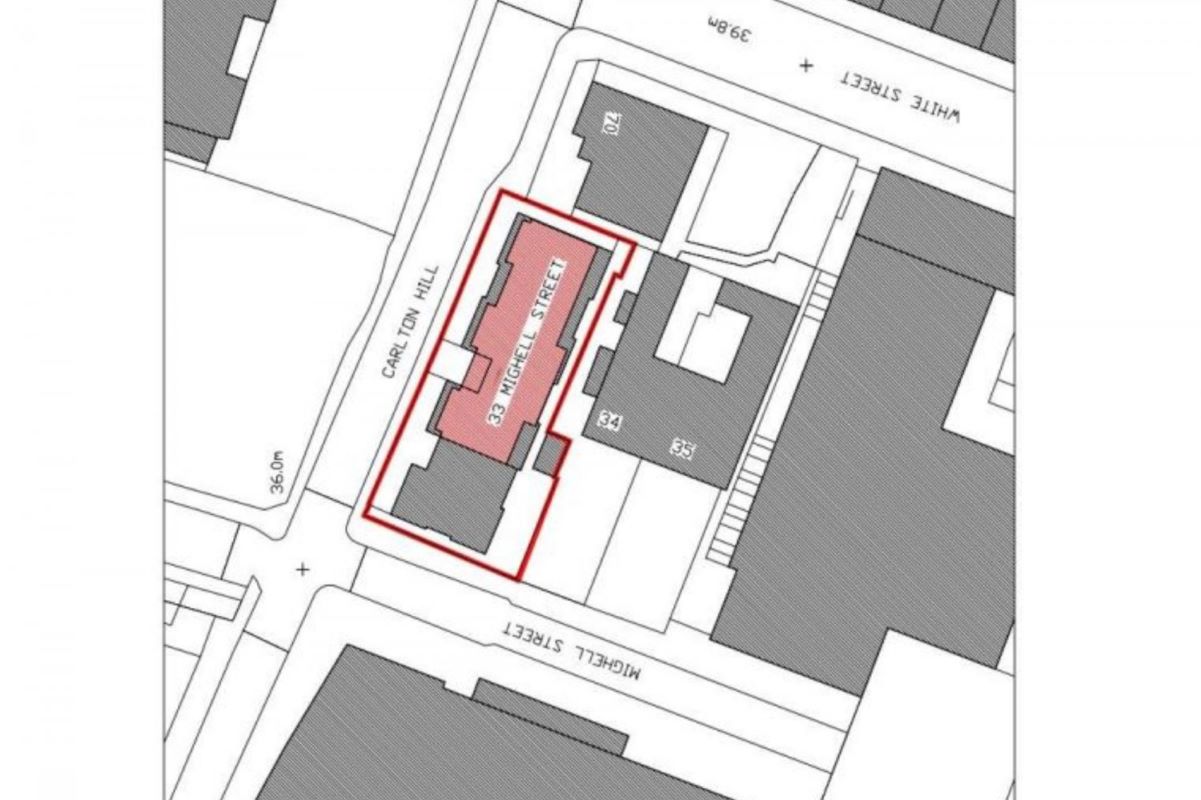
A 5x storey modern purpose built block of 3x commercial units & 9x apartments, which have been sold off by way of long leasehold interests at peppercorn rents.
The 3x commercial units are arranged at ground & lower ground floor levels let to Rooms for Therapists Limited, Synertial Technologies Ltd & Maximus UK Services Limited who for their year end September 2021 had a turnover of £177,759,643 & net assets of £56,042,174.
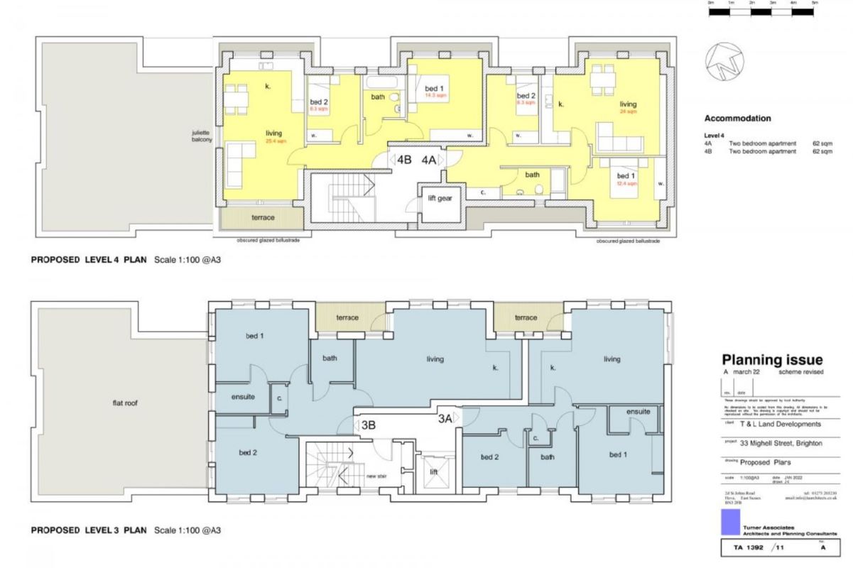
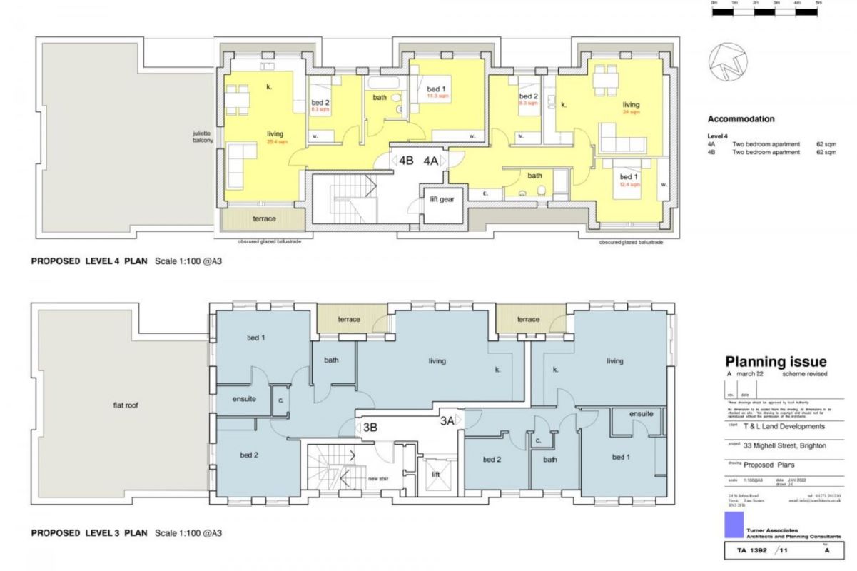
Planning consent has also been obtained to construct 2x further 2x bedroom apartments on the current roof space at 4th floor level under planning application number BH2022/00717 & appeal number APP/Q1445/D/22/3301047.
Eastern Unit, 33 Mighell Street - 1,418sq.ft
Let to Synertial Technologies Ltd for a term of 3 years from 10th October 2022 with provison for an 18 month break clause at a rent £20,000 per annum exclusive. The landlord holds a 3 month rent deposit.
Western Unit, 33 Mighell Street - 1,918sq.ft
Let to Maximus UK Services Limited for a term 4 years from 13th February 2023, with provision for a tenant only break on the 3rd anniversary subject to 6 months notice at a rent of £42,500 per annum exclusive.
Let to Rooms for Therapists Ltd - 700sq.ft
The landlord holds a deposit of £3250 plus notional VAT for a lease term expiring 4/6/2029 with a tenant only break clause on the 4/6/2024 subject to 6 months prior notice, paying a rent of £15,000 per annum exclusive.
Collective income of £77,500pax.
Roof space with planning consent for 2 x 2 bedroom penthouse apartments of approx. 62 sqm each.
* Generally speaking Guide Prices are provided as an indication of each seller's minimum expectation, i.e. 'The Reserve'. They are not necessarily figures which a property will sell for and may change at any time prior to the auction. Virtually every property will be offered subject to a Reserve (a figure below which the Auctioneer cannot sell the property during the auction) which we expect will be set within the Guide Range or no more than 10% above a single figure Guide.
Submit an enquiry and someone will be in contact shortly.
By setting a proxy bid, the system will automatically bid on your behalf to maintain your position as the highest bidder, up to your proxy bid amount. If you are outbid, you will be notified via email so you can opt to increase your bid if you so choose.
If two of more users place identical bids, the bid that was placed first takes precedence, and this includes proxy bids.
Another bidder placed an automatic proxy bid greater or equal to the bid you have just placed. You will need to bid again to stand a chance of winning.